Cross Flow Fan series

Cross flow fans also know as tangential fans and squirrel cage fans. They can be manufactured according to customers specification from a diameter of 25mm to 150mm and length from 50mm to 1150mm. The aluminum made cross flow fan is temperature resistant and has qualities of light in weight low in noise and minimum vibration, high strength and long life.
Cross Flow Fan series
Cross Flow Fan series

Product Description

Features:

  1. Impeller: Aluminum Alloy
  2. Bearing: Ball bearing or Sleeve bearing
  3. Motor: AC induction motor, AC shaded Pole, EC type
  4. Insulation Class: E, F
  5. The angle and the length of cross fan leaves are easily adjustable
  6. The motor bearing of the ventilator is protected by a layer of grease which would allow 15,000 hours of usage without re-greasing.
  7. The ventilator is especially suitable to incorporate with products that are light, thin and small.

 

Fan Data:

 

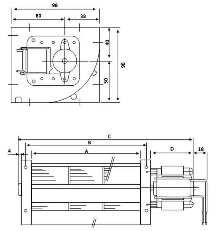
Size Drawing:

  • wechat

    PJM Service: motoractuator

Chat with Us